Клапан регулятора в режиме работы регулирования перепада давления или давления «после себя» нормально открыт при отсутствии давления рабочей среды в системе на высокой стороне до клапана. Импульс высокого давления регулируемого перепада подается по импульсной трубке в мембранную камеру со стороны задатчика (штуцер «+ »). Импульс низкого давления подается по импульсной трубке в мембранную камеру со стороны клапана(штуцер «- »). Регулятор перепада давления может быть использован в качестве регулятора давления после себя.
Не работает при отсутствии расхода и в тупиковых схемах.
Область применения
Применяется в системах теплоснабжения и горячего водоснабжения с температурой рабочей среды до 150ºС и номинальным давлением до 1,6Мпа.
Условия эксплуатации
УХЛ категории размещения 4 по ГОСТ 15150 с температурой окружающей среды от +40 до -50ºС о относительной влажностью 80% при среднегодовой температуре +6ºС.
По назначению регуляторы давления различают: РД-А – «после себя» (регуляторы напора); РД-В – « до себя» (регуляторы подпора).
Регуляторы давления «после себя» РД-А и регуляторы перепада давления (РП) являются нормально открытыми исполнительными органами, а регуляторы давления «до себя» РД-В – нормально закрытыми.
Конструкция
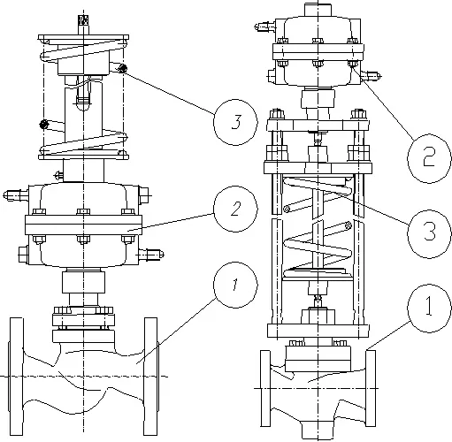
Регулятор конструктивно состоит из трех основных частей:
1 – регулирующего органа, представляющего собой проточную часть гидравлически разгруженного проходного клапана. При перемещении затвора происходит изменение пропускной способности.
2 – импульсного гидравлического исполнительного механизма, представляющего собой мембранную камеру с подводными штуцерами и трубками для подвода воздействующего параметра среды. Мембрана исполнительного механизма непосредственно связана со штоком затвора регулирующего органа и перемещает его, изменяя проходное сечение и соответственно пропускную способность.
3 – задатчика, представляющего собой упругий настраиваемый элемент (пружину). Пружина противодействует усилию развиваемому мембраной исполнительного механизма и соответственно перемещению затвора регулирующего органа.
Присоединение к трубопроводу – фланцевое. Присоединение фланцев по ГОСТ12820 с размерами уплотнительных поверхностей и присоединительными размерами по ГОСТ12815
Приборы измерения давления в комплект поставки не входят.
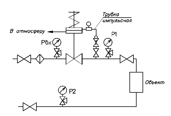
Регуляторы с температурой регулируемой среды до 90ºС могут быть установлены в любом положении, при температуре регулируемой среды выше 90°С регулятор следует устанавливать только на горизонтальном участке трубопровода регулирующим блоком (мембрана с пружинами) вниз. Перед регулятором рекомендуется устанавливать фильтр. Импульсные трубки рекомендуется подключать горизонтально сбоку через шаровой кран или вентиль. Структура условного обозначения регулятора:
|
Наименование показателя и единица измерения
|
Значение параметров
|
|
Номинальный диаметр DN,мм
|
15
|
20
|
25
|
32
|
40
|
50
|
65
|
80
|
100
|
125
|
150
|
|
Условная пропускная способность Кvу, м3/ч
|
0,4
|
1,6
|
1,6
|
-
|
-
|
10
|
20
|
40
|
63
|
100
|
-
|
|
0,63
|
2,5
|
2,5
|
6,3
|
10
|
16
|
25
|
63
|
100
|
125
|
160
|
|
1,0
|
4
|
4
|
10
|
16
|
25
|
40
|
80
|
125
|
160
|
200
|
|
1,6
|
6,3
|
6,3
|
16
|
20
|
32
|
50
|
100
|
160
|
200
|
260
|
|
2,5
|
8
|
8
|
-
|
25
|
40
|
63
|
-
|
-
|
-
|
-
|
|
3,2
|
-
|
10
|
-
|
-
|
-
|
-
|
-
|
-
|
-
|
-
|
|
4
|
-
|
-
|
-
|
-
|
-
|
-
|
-
|
-
|
-
|
-
|
|
Номинальное давление PN, МПа
|
1,6
|
|
Рабочая среда
|
Вода, водные растворы гликолей
|
|
Температура рабочей среды Т,ºС
|
До 150°С
|
|
Относительная протечка % от Кvу
|
0,1
|
|
Диапазон настройки регуляторов, Мпа
|
0,008 - 0,1
0,03 - 0,5
0,04 - 0,66
0,1 - 0,9
0,2 - 1,2
|
|
Зона нечувствительности регулирования от граничных значений диапазона настройки регуляторов, % не более
|
6
|
|
Длина L, мм
|
130
|
150
|
160
|
180
|
200
|
230
|
290
|
310
|
350
|
400
|
480
|
|
Высота H, мм
|
601
|
560
|
570
|
580
|
600
|
616
|
616
|
635
|
665
|
693
|
695
|
|
Высота H1, мм
|
658
|
615
|
715
|
717
|
740
|
770
|
768
|
785
|
790
|
820
|
838
|
|
Масса, кг
|
12
|
13
|
15
|
17
|
19
|
25
|
26
|
30
|
42
|
63
|
85
|
Схемы подключения регуляторов:

Установка регулятора перепада давления на подающем трубопроводе

Установка регулятора перепада давления на обратном трубопроводе

Установка регулятора давления «после себя»